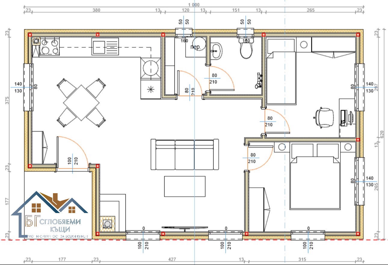
🔹Всяка къща се проектира и изгражда специално за клиента, съобразно уникалните характеристики на неговия имот. 🔹Част от нашите идейни проекти са разработени от инж. Спас Спасов, като някои вече са реализирани за доволни клиенти, а други предстои да бъдат монтирани – съчетавайки комфорт, функционалност и модерен дизайн.















