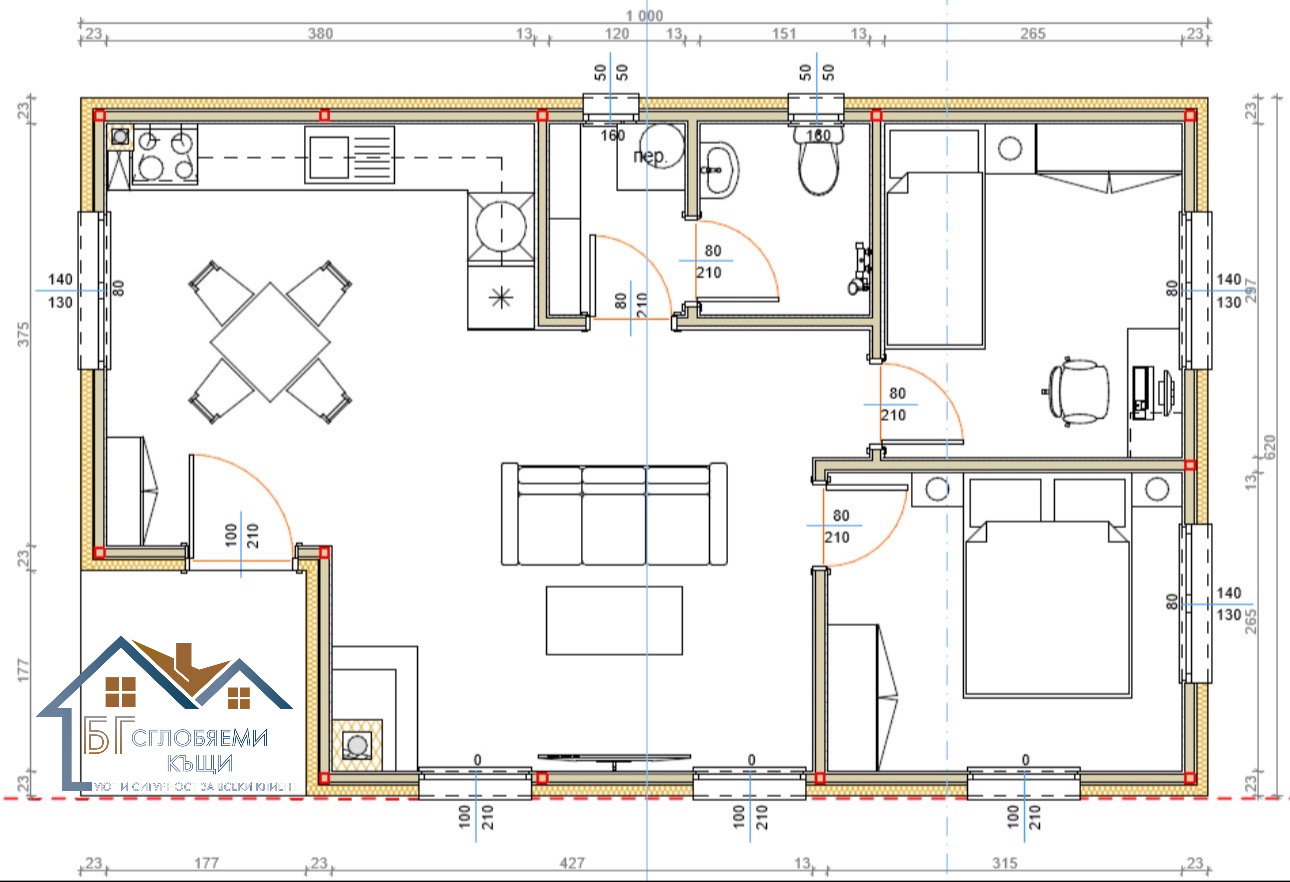
Сглобяема къща по БДС – 62 кв.м 📐 Външни размери: 6,2 × 10 м. Функционално разпределение: • 2 спални • хол с кухня и трапезария • баня и тоалетна • сухо помещение / килер 🔩 Конструкция: Метална – колони, обиколна греда, ферми и разпънки. Покрив – двускатен с метална керемида, улуци и водосточни тръби 🧱 Изпълнение по БДС: ➡️ Външно – влагоустойчива дървесна плоскост за конструктивно обшиване, EPS 100 мм, мрежа, шпакловка и фасадна мазилки ➡️ Вътрешно – каменна вата, влагоустойчива дървесна плоскост за конструктивно обшиване и гипсокартон ➡️ Бяла дограма, PVC 6К, 32мм стъклопакет. Срок за изпълнение: до 30 работни дни










