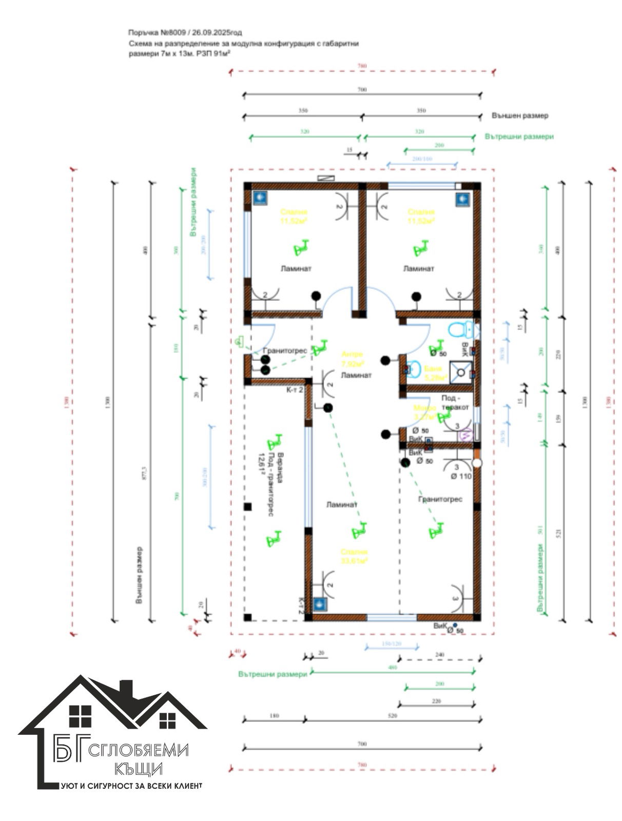
🔹Метална конструкция ➡️Стоманена конструкция от заварени профили, осигуряваща здравина, устойчивост и дълъг експлоатационен живот. 🔹Конструкцията включва: ➡️ Вертикални колони ➡️ Хоризонтални греди ➡️ Покривни ферми ➡️ Разпънки 🔹Разпределение: ➡️Две уютни спални, ➡️Просторна дневна с кухня ➡️Баня с тоалетна, ➡️Килер / дрешник ➡️Веранда 🔹Външни стени ➡️Съвременна ограждаща система с ефективна топло- и шумоизолация. ➡️Дълъг експлоатационен живот ➡️Фасадно завършване по избор на клиента – декоративен стил или минерална мазилка. ➡️Вътрешни стени ➡️Леки преградни стени от сухо строителство: ➡️Отлична топло- и шумоизолация. ➡️Гъвкавост при разпределението 🔹Покрив ➡️Метална покривна конструкция с покривни ферми: ➡️Топло- и хидроизолация ➡️Защита от атмосферни влияния ➡️Комфорт през всички сезони ➡️ Модерен интериорен облик.











































